
3G小流量三螺杆泵用途:
用來輸送溫度≤150℃,粘度5-760cSt,不含固體顆粒,無腐蝕性,具有潤滑性能的介質.
適用壓力範圍:0.6-2.5Mpa;
適用流量範圍:0.6-123m3 /h.
主要應用於燃油輸送,液壓工程,船舶工程,石化及其他工業.
3G小流量三螺杆泵優點:
(1)介質為直線連續輸送,無攪拌,無脈動;
(2)振動小,噪音低;
(3)壓力高,效率高;
(4)結構簡單,拆裝方便;
(5)體積小重量輕;
(6)磨損輕微,壽命長.
3G小流量三螺杆泵結構特點:
一般采用機械密封(特殊要求,可選用磁力驅動,零泄露結構).泵通過爪型聯軸器由電動機驅動.從主軸外伸端向泵看,為順時針旋轉.
3G小流量三螺杆泵選泵注意事項
1,介質的潤滑性,清潔度,腐蝕性.
2,介質的粘度,溫度.
3,介質進,出口壓力,安裝高度.
4,使用場合的防爆要求.
5,訂貨時請注明規格,型號,設計使用壓力,轉速,介質粘度,溫度,電機防爆級別,介質名稱.
3G小流量三螺杆泵應在吸排停止閥全開的情況下起動,以防過載或吸空。
3G小流量三螺杆泵雖然具有幹吸能力,但是必須防止幹轉,以免擦傷工作表麵。
假如泵需要在油溫很低或粘度很高的情況下起動,應在吸排閥和旁通閥全開的情況下起動,讓泵起動時的負荷低,直到原動機達到額定轉速時,再將旁通閥逐漸關閉。
當旁通閥開啟時,液體是在有節流的情況下在泵中不斷循環流動的,而循環的油量越多,循環的時間越長,液體的發熱也就越嚴重,甚至使泵因高溫變形而損壞,必須引起注意。
3G小流量三螺杆泵拆卸、組裝及調整的要求:
拆卸3G小流量三螺杆泵的軸封、軸承鎖母,用力要輕,防止損壞絲扣;拆卸軸承盒與泵體的聯接螺栓,拆內端蓋,然後可以抽螺杆,抽螺杆要用專用工具,將三隻或二隻螺杆同時抽出。
組裝及調整3G小流量三螺杆泵時,螺杆端麵與端蓋相接觸部分、螺杆與軸承套間,組裝前要加一點潤滑油,防止組裝過程中手盤車時,這些部位幹摩擦;緊固外端蓋、軸承盒與泵體的聯接螺栓,要對稱操作,用力要均勻,邊緊邊盤動螺杆。
3G25*4-46泵性能曲線圖
螺杆泵按泵的用途分類共分為5個係列
係列代號 | 主要用途 | 性能範圍 |
流量 m3/h | 壓力 MPa |
3G | 輸送3-20oE潤滑油,溫度≤80℃,Lub oil visc3-20oE;temp≤80℃ | 0.6-570 | 2.5 |
3GR | 輸送3-50oE重質燃油,溫度≤120℃,Heavy feul lil visc3-50oE;temp≤120℃ | 0.6-570 | 2.5 |
3GR | 輸送1.2-5oE輕質燃油,溫度≤120℃,Light feul oil visc1.2-5oE;temp≤120℃ | 0.6-570 | 1.6 |
3GW | 輸送高溫加熱燃油,溫度≤150℃,High temp feul heated oil;temp≤150℃ | 0.6-363 | 1.6 |
3GN | 輸送100oE高粘度油料,溫度≤80℃,High visc oil 100oE;temp≤80℃ | 0.6-636 | 2.5 |
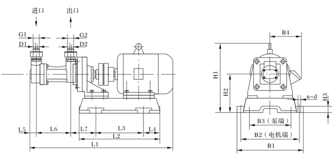
3G25×4、3G36×4外形及安裝尺寸

泵型號 | 機座號 | L1 | L2 | L3 | L4 | L5 | L6 | L7 | B1 | B2 | B3 | B4 | H1 | H2 | H3 | n-d | D1×G1 | D2×G2 |
25×4 | 80 90S 90L 100L | 583 608 643 665 | 340 380 380 415 | 200 250 250 265 | 70 65 65 75 | 29 29 29 29 | 125 125 125 125 | 95.5 90.5 90.5 101.5 | 280 280 280 305 | 240 240 240 265 | 240 240 240 265 | 150 160 160 160 | 255 265 265 315 | 160 160 160 170 | 20 20 20 20 | 4-φ15 4-φ15 4-φ15 | φ25×φ34 φ25×φ34 φ25×φ34 | φ20×φ34 φ20×φ34 φ20×φ34 |
36×4 | 100L 112M 132S | 770 790 865 | 438 438 518 | 298 298 368 | 70 70 75 | 44 44 44 | 168 168 168 | 112 117 117 | 330 350 380 | 290 310 340 | 290 310 340 | 180 190 210 | 337 345 375 | 192 192 192 | 20 20 20 | 4-φ19 4-φ19 4-φ19 | φ50×φ59 φ50×φ59 φ50×φ59 | φ40×φ50 φ40×φ50 φ40×φ50 |
3G小流量三螺杆泵性能參數表
型號 | 排出壓力 P MPa | 流量 Q | 轉速 n r/min | 必需汽 蝕餘量 r m | 效率 η % | 電動機 |
m3/h | L/min | 功率kw | 型號 |
25×4-46 | 1.0 | 0.8 | 13 | 1450 | 4 | 62 | 0.75 | Y802-4 |
2.5 | 0.6 | 10 | 60.6 | 1.5 | Y90L-4 |
1.0 | 2.0 | 33 | 2900 | 4.5 | 59.4 | 1.5 | Y90S-2 |
2.5 | 1.6 | 26 | 69 | 3 | Y100L-2 |
30×4-46 | 1.0 | 1.6 | 26 | 1450 | 4.5 | 63.5 | 1.1 | Y90S-4 |
2.5 | 1.2 | 20 | 61 | 2.2 | Y100L1-4 |
1.0 | 3.6 | 60 | 2900 | 5 | 60 | 2.2 | Y90L-2 |
2.5 | 3.2 | 53 | 69 | 4 | Y112M-2 |
36×4-46 | 1.0 | 2.8 | 46 | 1450 | 4.5 | 66 | 2.2 | Y100L1-4 |
2.5 | 2.4 | 40 | 66.5 | 4 | Y112M-4 |
1.0 | 6.5 | 108 | 2900 | 5 | 60.5 | 4 | Y112M-2 |
2.5 | 6 | 100 | 72 | 7.5 | Y132S2-2 |
42×4-46 | 1.0 | 4.8 | 80 | 1450 | 5 | 62 | 4 | Y112M-4 |
2.5 | 4.2 | 70 | 73 | 5.5 | Y132S1-4 |
1.0 | 10.5 | 175 | 2900 | 5.5 | 61 | 5.5 | Y132S1-2 |
2.5 | 10 | 166 | 72 | 15 | Y160M2-2 |
45×4-46 | 1.0 | 6.3 | 106 | 1450 | 5 | 70 | 3 | Y100L2-4 |
2.5 | 5.9 | 99 | 74 | 7.5 | Y132M-4 |
1.0 | 13.5 | 225 | 2900 | 5.5 | 60 | 7.5 | Y132S2-2 |
2.5 | 13 | 217 | 75 | 15 | Y160M2-2 |
60×4-46 | 1.0 | 15.5 | 255 | 1450 | 5 | 71.3 | 11 | Y160M-4 |
2.5 | 14.5 | 245 | 74 | 15 | Y160L-4 |
1.0 | 32 | 533 | 2900 | 5.5 | 63 | 18.5 | Y160L-2 |
2.5 | 31.5 | 525 | 77 | 37 | Y200L2-2 |
70×2-46 | 0.6 | 24 | 400 | 1450 | 5 | 71 | 7.5 | Y132M-4 |
1.0 | 23.5 | 390 | 75 | 11 | Y160M-4 |
1.6 | 22.5 | 370 | 76 | 15 | Y160L-4 |
70×4-46 | 1.0 | 24.5 | 408 | 1450 | 5 | 72.5 | 18.5 | Y180M-4 |
2.5 | 23.5 | 392 | 79 | 30 | Y200L-4 |
80×2-46 | 0.6 | 36.5 | 608 | 1450 | 5 | 72 | 11 | Y160M-4 |
1.0 | 35 | 594 | 75.5 | 18.5 | Y180M-4 |
1.6 | 34.5 | 575 | 76.5 | 22 | Y180L-4 |
80×4-46 | 1.0 | 37 | 617 | 1450 | 5.5 | 72 | 30 | Y200L-4 |
2.5 | 35 | 590 | 78.1 | 45 | Y225M-4 |
100×2-46 | 0.6 | 72.5 | 1208 | 1450 | 5 | 73 | 22 | Y180L-4 |
1.0 | 71 | 1183 | 77 | 37 | Y225S-4 |
1.6 | 60.5 | 1158 | 79 | 45 | Y225M-4 |
100×4-46 | 1.0 | 72.5 | 1208 | 1450 | 5.5 | 73 | 55 | Y250M-4 |
2.5 | 70 | 1165 | 78.5 | 75 | Y280S-4 |
S100×3-27 | 0.6 | 72 | 1196 | 1450 | 6 | 62 | 22 | Y180L-4 |
1.6 | 70 | 1160 | 72 | 55 | Y250M-4 |
2.5 | 69 | 1145 | 74 | 75 | Y280S-4 |
S120×3-27 | 0.8 | 123 | 2055 | 1450 | 6 | 74.5 | 55 | Y250M-4 |
1.5 | 120 | 2010 | 76 | 90 | Y280M-4 |
2.5 | 115 | 1920 | 78.5 | 132 | Y315M-4 |